Eladó•Magyarország•Zala megye•Kehidakustány |
| Kehidakustány - bútorozott lakás eladó. (1508) | 33 800 000 Ft |
Ingatlan típusa
Társasházi lakás
Társasházi lakás
Építési mód
Tégla
Tégla
Alapterület
38 m2
38 m2
Szobák száma
2
2
Építés éve
2000
2000
Komfort
Összkomfortos
Összkomfortos
Fűtés
Elektromos fűtés
Elektromos fűtés
Emelet
1
1
Szintek száma
2
2
Erkély/Terasz
Lift
Parkolás
Udvarban
Udvarban
Tájolás
Dél-Nyugat
Dél-Nyugat
Kilátás
Udvarra
Udvarra
Ingatlan állapota
Felújított
Felújított
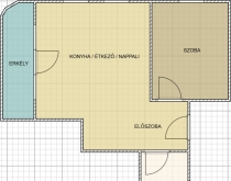
| Az ingatlan környéke | Alaprajz |
| 100 méteren belül: | |
| 500 méteren belül: | |
| 1000 méteren belül: |
Az ingatlan bemutatása
A Balatonhoz és Hévízhez közel Kehidakustányban, a helyi termálfürdőtől kényelmes séta távolságban várja új tulajdonosát egy amerikai konyhás nappali + hálószobás, igényesen felújított, 1. emeleti lakás. Alapterülete 38 m2. Az ingatlan bútorozott, gépesített, akár azonnal költözhető. Állandó lakhatásra, vagy akár befektetésnek is kiváló választás, mivel a közelben rengeteg kikapcsolódási lehetőség várja az ide érkezőket (Balaton, Hévíz, Zala völgye, Őrség, Göcsej).
A lakás belső kialakítása:
- előtér (kerámia járólap)
- amerikai konyhás nappali + étkező (kerámia járólap, laminált padló, erkély kapcsolat)
- hálószoba (laminált padló)
- fürdőszoba (zuhanyzó, mosdó, WC, mosógép csatlakozás)
- erkély (5 m2, belső udvari, csendes)
A D - Ny tájolásnak köszönhetően a lakás világos. A fűtés hűtő/fűtő klímaberendezéssel és elektromos fűtőpanellel történik. Közművek: víz, villany, szennyvízcsatorna. Parkolni a társasház körül kialakított parkolóban lehet. 5 éve valósult meg a teljeskörű felújítás. A képeken látható bútorok és berendezések a vételár részét képezik.
A híres és kedvelt gyógyfürdő Hévíz autóval kb. 10 perc alatt, a Balaton (Keszthely) 20 percen belül elérhető. A szomszédos Zala Springs Golf Resort minden igényt kielégítő kényelemmel, elegáns környezetben várja a golf sport szerelmeseit és mindazokat, akik értékelik a kiemelkedő minőséget. A lakás alkalmas vendégfogadásra is, egész évben jól kiadható, így befektetésnek és saját használatra egyaránt jó választás.
Az ingatlanra akár a 3 %-os, államilag támogatott hitel is igényelhető!
A lakás belső kialakítása:
- előtér (kerámia járólap)
- amerikai konyhás nappali + étkező (kerámia járólap, laminált padló, erkély kapcsolat)
- hálószoba (laminált padló)
- fürdőszoba (zuhanyzó, mosdó, WC, mosógép csatlakozás)
- erkély (5 m2, belső udvari, csendes)
A D - Ny tájolásnak köszönhetően a lakás világos. A fűtés hűtő/fűtő klímaberendezéssel és elektromos fűtőpanellel történik. Közművek: víz, villany, szennyvízcsatorna. Parkolni a társasház körül kialakított parkolóban lehet. 5 éve valósult meg a teljeskörű felújítás. A képeken látható bútorok és berendezések a vételár részét képezik.
A híres és kedvelt gyógyfürdő Hévíz autóval kb. 10 perc alatt, a Balaton (Keszthely) 20 percen belül elérhető. A szomszédos Zala Springs Golf Resort minden igényt kielégítő kényelemmel, elegáns környezetben várja a golf sport szerelmeseit és mindazokat, akik értékelik a kiemelkedő minőséget. A lakás alkalmas vendégfogadásra is, egész évben jól kiadható, így befektetésnek és saját használatra egyaránt jó választás.
Az ingatlanra akár a 3 %-os, államilag támogatott hitel is igényelhető!
Felszereltség, kényelmi szolgáltatások
Klíma· Bútorozott· Felszerelt konyha· Zuhanyzó· Hőszigetelt műanyag ablak


















